04135422496
09143055836
Info@RezaLame.ir
شنبه تا 4شنبه 8:00 الی 16:00
صفحه اصلی || Home Page
پروژه ها || Projects
رویدادها || Events
رزومه || Rsume
وبلاگ قدیمی || Weblog
دانشگاه || University
پایان نامه || Thesis
نظام || Engineering
علایق || Favorites
معمار || Architect
Santiago Calatrava
ابنیه || Buildings
عکاسی || Photography
موسیقی || Music
کارهای دستی || Hand craft
تماس با ما || Contact Us
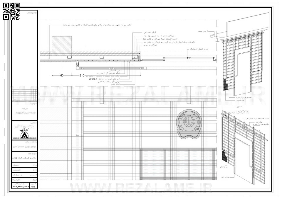
پروژه عتیق|| Project Atigh
مدارک طراحی || Design documentation
مدارک اجرا || Construction documentation
تاریخ
15 مهر 1397
برچسب ها
تجاری || Commercial, نظارت || Supervision, طراحی || Design
صفحه اصلی || Home Page
پروژه ها || Projects
رویدادها || Events
رزومه || Rsume
وبلاگ قدیمی || Weblog
دانشگاه || University
پایان نامه || Thesis
نظام || Engineering
علایق || Favorites
معمار || Architect
Santiago Calatrava
ابنیه || Buildings
عکاسی || Photography
موسیقی || Music
کارهای دستی || Hand craft
تماس با ما || Contact Us